Project Gallery

About Sobha Insignia

Sobha Insignia

Rs. 2.74 Crore Onwards
location_on

Dr Puneeth Rajkumar Rd, Devarabisanahalli, Bellandur, Bengaluru, Karnataka 560103

apartment 33
straighten 3,4 BHK 4 BHK Duplex
layers 1 Acre

Sobha Insignia

Sobha Insignia is a new exclusive ultra-luxury residential Apartment project in Bellandur, Bangalore.

The residential enclave, Sobha Insignia consists of a single tower and features the very best in the Sobha Limited’s luxury segment. The project offers spacious and immaculately designed 3BHK & 4BHK Duplex Apartments with luxurious features.

Beautiful landscapes, rooftop amenities, green cover, and skyline views all around Sobha Insignia make it more special & Elite.

Master Plan

Sobha Insignia Master Plan

Project Overview

1 acres

Total Land Area

33

Luxury Apartments

78%

Open Green Spaces

Apartment

Structure

33

Configurations

3

Clubhouses

Mar 2026 Onwards

Possession Date

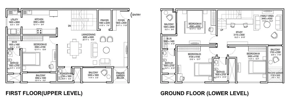
Floor Plans

World-Class Amenities

Gymnasium

Clubhouse

Swimming Pool

Games Room

Reflexology Garden

Jogging Track

Kids Play Area

Party Area

Prime Location

Connectivity at Its Best

Outer Ring Rd, Devarabisanahalli, Bellandur, Bengaluru, Karnataka 560103

Premium Residences

Exclusive living spaces tailored for you

3 BHK

Rs. 2.74 Crore Onwards
Area 1821 to 2234

3.5 BHK

Rs. 3.72 Crore Onwards
Area 2410 to 2455

4 BHK Duplex

Rs. 5.78 Crore Onwards
Area 3419
Configuration Super Built-Up Area Starting Price
3 BHK 1821 to 2234 Rs. 2.74 Crore Onwards
3.5 BHK 2410 to 2455 Rs. 3.72 Crore Onwards
4 BHK Duplex 3419 Rs. 5.78 Crore Onwards

* Onwards & are subject to change

Experience Sobha Insignia

Our sales consultant will contact you within 24 hours to schedule a site visit and discuss available options.

Get A Call Back