Project Gallery

About Godrej Woodland Plots

Godrej Woodland Plots

Rs. 29.9 Lakh Onwards
location_on

Chikka Thirupati Rd, Bengaluru, Karnataka 562114

apartment 680 Plots
straighten 900 – 1800 Sq.ft
layers 100 Acres

Godrej Woodland Plots

Godrej Woodland is the massive new premium plotted development project launched near Chikka Tirupati just off Sarjapur Road, Bangalore.

The massive residential enclave Godrej Woodland Phase 2 features the very best in the world-renowned Godrej Properties’ Plotted development segment. The project offers spacious Cottages, bungalows, mansions, and Estate Plots with the ultimate luxurious features.

Beautiful landscaping and nestled amidst over 1500 trees with a green cover all around Godrej Woodland Phase 2 make it more special & Elite.

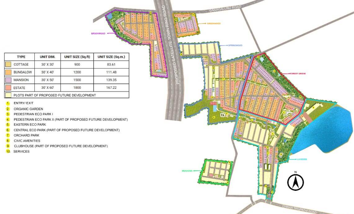
Master Plan

Godrej Woodland Plots Master Plan

Project Overview

100 acres

Total Land Area

680

Luxury Apartments

78%

Open Green Spaces

Land

Structure

680 Plots

Configurations

3

Clubhouses

2025 Onwards

Possession Date

World-Class Amenities

Gymnasium

Clubhouse

Swimming Pool

Games Room

Party Area

Jogging Track

Kids Play Area

Activity Area

4 Landscaped Gardens

Prime Location

Connectivity at Its Best

Chikka Thirupati Rd, Bengaluru, Karnataka 562114

Premium Residences

Exclusive living spaces tailored for you

Cottage (30×30)

Rs. 29.9 Lakh Onwards
Area 900

Bungalow (30×40)

Rs. 39.9 Lakh Onwards
Area 1200

Mansion (30×50)

Rs. 54.9 Lakh Onwards
Area 1500

Estate (30×60)

Rs. 64.9 Lakh Onwards
Area 1800
Configuration Super Built-Up Area Starting Price
Cottage (30×30) 900 Rs. 29.9 Lakh Onwards
Bungalow (30×40) 1200 Rs. 39.9 Lakh Onwards
Mansion (30×50) 1500 Rs. 54.9 Lakh Onwards
Estate (30×60) 1800 Rs. 64.9 Lakh Onwards

* Onwards & are subject to change

Project Walkthrough

Experience Godrej Woodland Plots

Our sales consultant will contact you within 24 hours to schedule a site visit and discuss available options.

Get A Call Back