Project Gallery

About Sobha Lifestyle Legacy

Sobha Lifestyle Legacy

Rs. 9.3 Crore Onwards
location_on

IVC Road, Devanahalli, North Bengaluru

apartment 155
straighten 3768 – 7295 sq.ft
layers 55 Acres

Sobha Lifestyle Legacy

Experience Luxury Villas in North Bangalore at Sobha Lifestyle Legacy – IVC Road, Devanahalli

Sobha Lifestyle Legacy is an ultra-premium residential villa project by SOBHA Limited, located on the rapidly developing IVC Road in Devanahalli, North Bangalore. This exclusive community offers luxurious, spacious villas designed to provide an opulent lifestyle surrounded by greenery and open landscapes.

These meticulously crafted villas blend modern architecture with elegant design, offering unmatched privacy, top-quality finishes, and thoughtfully planned layouts that cater to high-end living. Every villa is surrounded by lush green gardens, wide internal roads, and expansive views, ensuring residents experience peace, tranquility, and luxury at every turn.

Sobha Lifestyle Legacy Bangalore is strategically located just minutes from the Kempegowda International Airport and is well connected to Hebbal, Yelahanka, and other key hubs of North Bangalore. It lies in close proximity to major upcoming infrastructure projects like the Peripheral Ring Road, STRR, and Aerospace SEZ, making it an ideal investment for discerning homebuyers and NRI investors looking for high-appreciation potential.

The project is nestled within a gated community offering a wide range of world-class amenities such as a fully-equipped clubhouse, modern gymnasium, swimming pool, landscaped gardens, children’s play area, outdoor sports courts, multi-purpose party hall, and 24/7 advanced security with CCTV surveillance.

Whether you're seeking a peaceful retreat away from city chaos or a high-end residence with excellent connectivity, Sobha Lifestyle Legacy Villas on IVC Road offer the perfect balance of exclusivity, convenience, and long-term value. Invest in a home that reflects your aspirations with the trusted quality and legacy of SOBHA Limited.

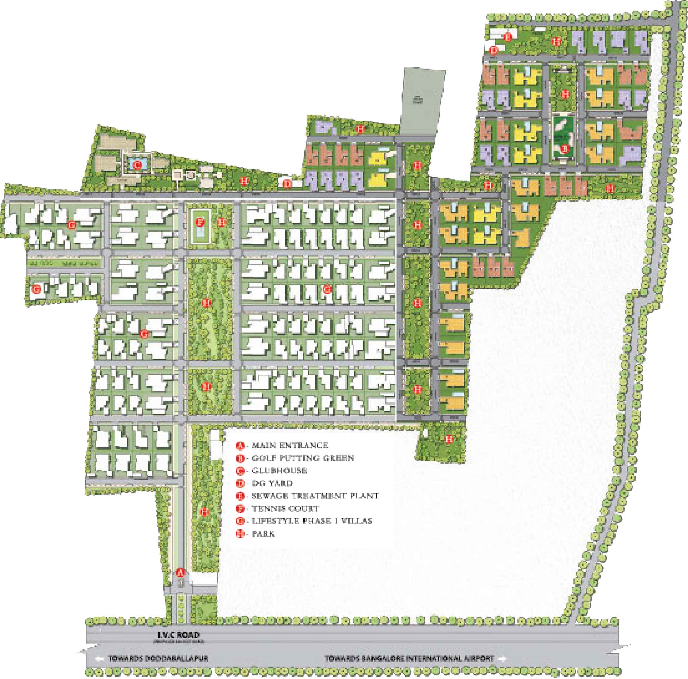
Master Plan

Sobha Lifestyle Legacy Master Plan

Project Overview

55 acres

Total Land Area

155

Luxury Apartments

78%

Open Green Spaces

Villa

Structure

155

Configurations

3

Clubhouses

Ready to Move‑In

Possession Date

Floor Plans

World-Class Amenities

Clubhouse

Gymnasium

Swimming Pool

Sports Courts (Tennis, Badminton, Squash)

Children’s Play Area

Landscaped Gardens & Oxygen Parks

Multipurpose Party / Recreation Hall

Work Pods

24/7 Security with CCTV

Power Backup

Prime Location

Connectivity at Its Best

IVC Road,devanahalli, Off bellary road near International airport, Bengaluru, Karnataka 562110

Premium Residences

Exclusive living spaces tailored for you

Villas

Rs. 9.3 Crore Onwards
Area 3,768–4,304

Villas

Rs. 10 Crore Onwards
Area 6136-7,295
Configuration Super Built-Up Area Starting Price
Villas 3,768–4,304 Rs. 9.3 Crore Onwards
Villas 6136-7,295 Rs. 10 Crore Onwards

* Onwards & are subject to change

Experience Sobha Lifestyle Legacy

Our sales consultant will contact you within 24 hours to schedule a site visit and discuss available options.

Get A Call Back